Home About Amsprop Portfolio Available Property Tenant Profiles Contact Us

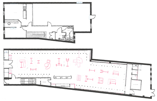
Portfolio > 19/20 East Street > floor plan
 
19/20 East Street, Chichester PO19 1HS
 
 
Enlarge Photo
 
34–35 Great Sutton Street, London EC1V 0DX - First Floor Plan