Home About Amsprop Portfolio Available Property Tenant Profiles Contact Us

Portfolio > Kings Head, Chigwell, Essex > floor plan
 
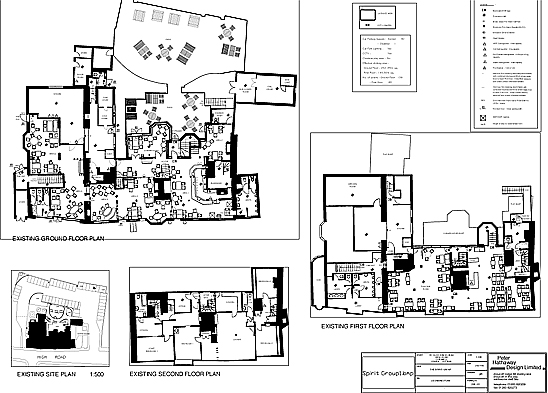
Kings Head, High Road, Chigwell, Essex IG7 6QA
 
  Existing Ground, First and Second Floor Plan
   
 
Enlarge Photo
 
Kings Head Floorplans
PDF download Click here to view larger PDF version

     
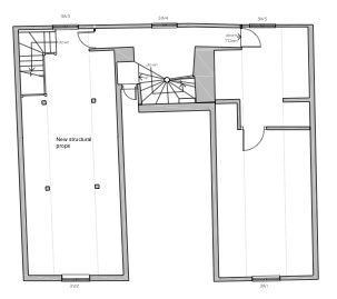
    Proposed 3rd Floor Plan
     
    Kings Head 3rd Floor PlanPDF download Click here to view larger PDF version